
METRIC
MIL-DTL-24695/1B(SH)
25 September 2012
SUPERSEDING
MIL-V-24695/1A(SH)
23 December 1991
DETAIL SPECIFICATION SHEET
VALVE, VENT AND TEST
HYDRAULIC SERVICE
This specification is approved for use by the Naval Sea Systems Command, Department of the Navy, and is
available for use by all Departments and Agencies of the Department of Defense.
The requirements for acquiring the product described herein shall consist of this specification sheet and
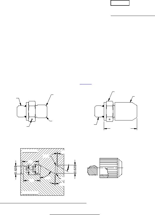
MIL-DTL-24695. Vent and test valve configuration is provided on figure 1.
HEX STK
12 mm X 1.5
17 (0.669)
CAP
SEE TABLE I
REVERSE BUTTRESS THDS
SEE NOTE 2
SEE NOTE 8
SEE TABLE I
DRILL ONE 2 (0.062) DIA.
36 (1.42) MAX.
LOCK WIRE HOLE ACROSS
WITH CAP INSTALLED
FLATS WHEN SPECIFIED
BY PART NUMBER,
SEE NOTE 7
INTERNAL
2°±1°
0.1R
1.5
30°
60°
0.1R
1.5
2°±1°
EXTERNAL
REVERSE BUTTRESS THREAD ASSEMBLY CUTAWAY VIEW
FIGURE 1. Vent and test valve configuration.
AMSC N/A
FSC 4810
For Parts Inquires call Parts Hangar, Inc (727) 493-0744
© Copyright 2015 Integrated Publishing, Inc.
A Service Disabled Veteran Owned Small Business